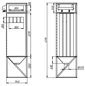
Фильтр рукавный ФРИЦ18УХЛ1 ТУ BY 690660797.001-2015
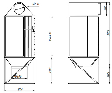
- Импульсная продувка сжатым воздухом
фильтровальных рукавов;
- Площадь фильтрации - 18м2;
- Номинальный объем фильтуемого воздуха -3800 м3/час;
- Номинальная масса фильтруемой пыли - 1450 кг/час;
- Материал - Иглопробивной нетканный полиэстер
с антистатической нитью,
плотность 500 г/м.кв. (опционально - согласно ТЗ);
- Номинальный расход сжатого воздуха
под давлением 6 бар - до 180 дм3/мин.;
- Сжатый воздух должен быть очищен от
капельной влаги не грубее 8 класса;
- Циклонный вход под прямым углом обеспечивает
лучшую сепарацию мелкой пыли иотводит абразивную
пыль от нижней части фильтровальных рукавов;
- Материал фильтра - сталь Ст3пс , толщина листа - 2,5мм.;
(опционально -сталь 09Г2С, AISI 304, AISI 316)
- Покрытие - грунт-эмаль "Белакор"
- Опционально комплектуется cистемой раннего
распознования пожара, а также системой
центрального или местного пожаротушения;
- Оригинальный клапан Вентури увеличивает срок
эксплуатации фильтровальных рукавов;
- Управление регенерацией фильтра по времени
или (и) по перепаду давления (согласно задания);
- Производитель фильтра - ООО "Современные
Машиностроительные Технологии";
- Разработчик фильтра - ООО "НАМТЕГ" ;
- Декларация соответствия требованиям :ТР ТС 010/2011,
ТР ТС 004/2011, ТР ТС 020/2011 ТС № RU Д-BY. AY04.B.31354